BONANZA IV

Coffee Shop in Berlin-Mitte
Concept, Design & Execution by Modiste Studio
2021 (Completion 2022)
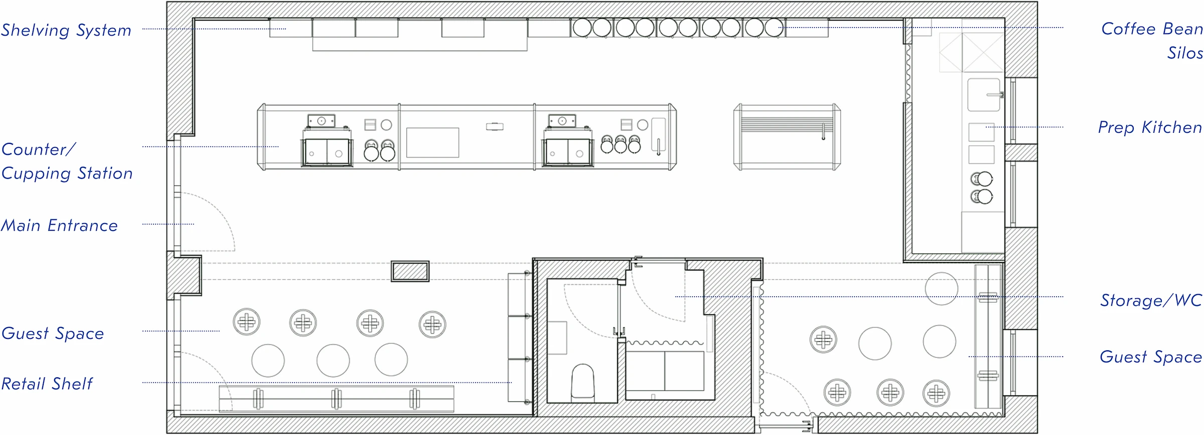
For the fourth Berlin branch of the Bonanza coffee roasting company, a small shop in Berlin-Mitte that previously had no gastronomic function was converted into a café. This made the new installation of all necessary connections of the counter, which only stands on cylinders, as well as a small preparation kitchen a special challenge.

Warm wood tones and soft textiles were contrasted with the reflective metal of the counter and the shelving elements. Mirrored surfaces in the upper half of the room contribute to a visual enlargement. The strikingly angled parts of the counter and the module shelving system are custom-made and were specially designed for Bonanza products and workflows.
Photo by Mathilde Karrèr & Marick Baars
Screenshots of 3D Model at Design Phase | Rhino
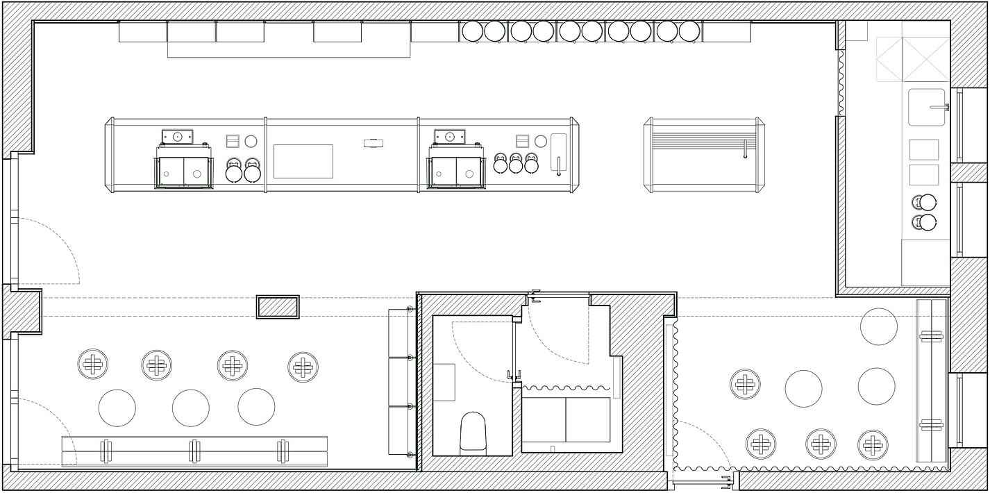
Floor Plan / AutoCAD
Photos by Mathilde Karrèr & Marick Baars
One detail of the design are stools and benches made of oak, in which the angled edges are reflected again on a small scale. The wooden joints are inspired by Charlotte Perriand and Pierre Chapo. Only the benches were eventually realised.
Technical Drawings Draft | AutoCAD
  • Elevation Guest Space
  • Elevation Towards Back
  • Elevation Counter
  • Elevation Towards Front
Sections | Rhino